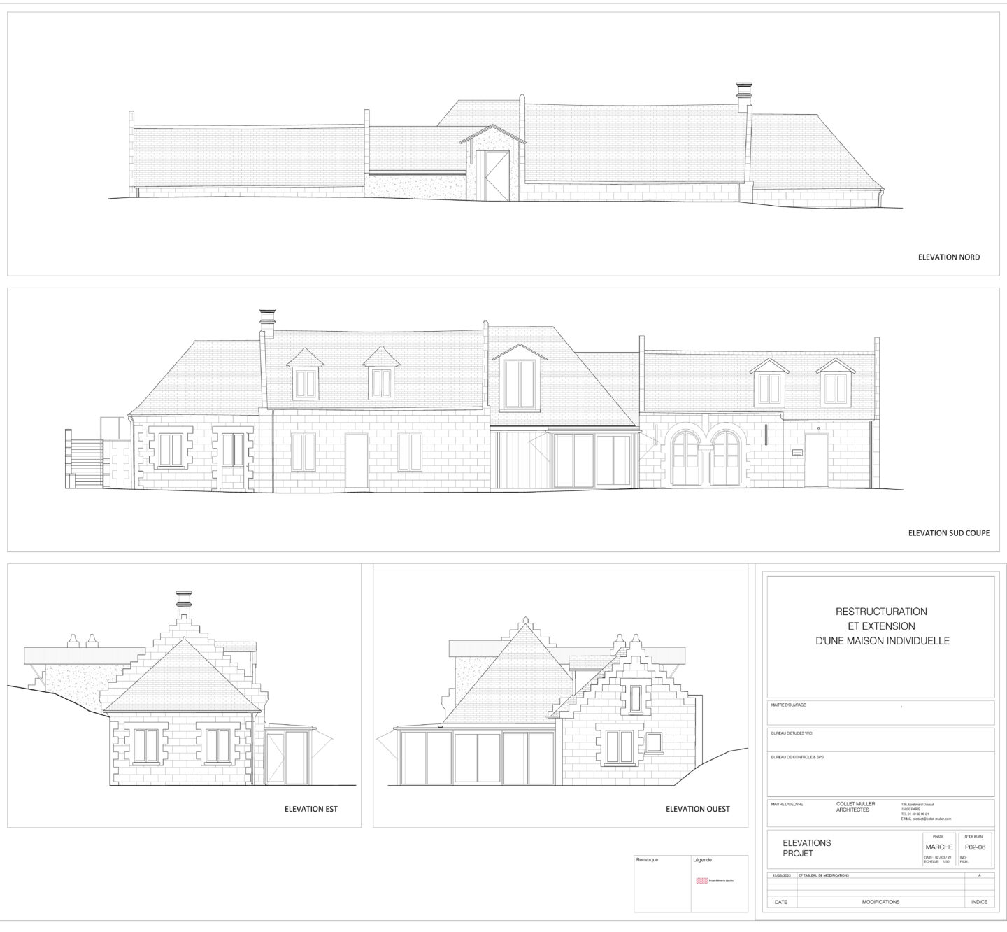
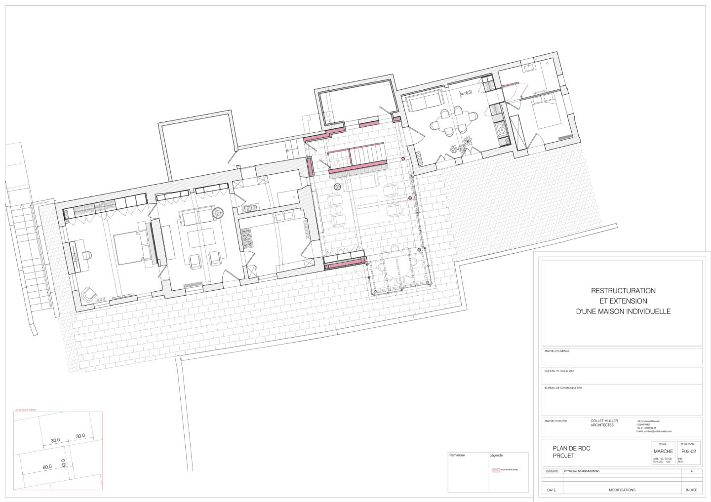
Transformation et extension d’une maison
OISE, FRANCE, 2024
Afin de transformer une maison de weekend en maison de tous les jours, les deux corps de bâtiment, jusque-là séparés, sont réunis.
La forme de l’élément rapporté résulte du prolongement des deux faitages adjacents traversée par la nouvelle entrée de la maison reliant ainsi les jardins hauts et bas de la propriété.
Les éléments qui composent cette nouvelle construction, inspirés des éléments préexistants, s’empilent.
Ancien et nouveau ne forme plus qu’un.
client
PARTICULIER
location
OISE, FRANCE
statut
LIVRÉ
date
2024
Collet Muller Architectes

138 Boulevard Davout
75020 Paris
01 40 92 98 21
contact@collet-muller.com

Collet Muller s’évertue à traiter les différentes échelles de l’architecture sans retenue ni hiérarchie préconçue.

 

1972
Yves Collet & Dominique Burger s’associent
pour 40 ans de réalisations communes.
1987
Christophe Muller les rejoint.
2013
Collet & Muller Architectes poursuivent l'activité.
2016
Antoine Collet est associé à la structure.
2019
COLLET MULLER ARCHITECTES
ÉQUIPE
L’équipe est composée de Yves Collet, Christophe Muller, Antoine Collet, Christine Sitler, Thibaut Kaluzinski, Lilian Lucas Biers, Eva Morin, Eden Guillory.
DEPUIS 2016
Ly An, Arthur Clauss, Chevalier + Guillemot architectes, Pedro Coello Behr, Vincent Bourgeois, Philippe Dandrel Atelier DA U, Balthazar Donzelot, Adrien Fontanel, Fabrice Girard, Baker Ghafir, Léonard Kadid, Raphaël Kadid, Jeanne Lamour, Clément Lesnoff-Rocard, Coralie Marot, Tassos Panagopoulos, Sylvain Primout, Maxime Verret Photographe, Ariane Huynh-Lenhardt, Frédéric Gilles.
PRIX
En 2023, sélectionné au prix "European Award for Architectural Heritage Intervention" pour le projet de rénovation d'une ferme dans l'Oise.

En 2022, l'agence est lauréate du prix D'A 10+1 pour le projet de 26 logements sociaux pour I3F à Dammartin-en-Goële.

PUBLICATIONS
D’Architecture, n°302 Octobre 2022
Prix d’architecture 10+1 2022, pages 5-10

D’Architectures, n°301, Septembre 2022
Loin de l’architecture, l’expansion logistique, Plateforme logistique de Caudalie, Cyrille Véran, pages 77-79

D’Architecture, n°297, Avril 2022
Parcours, Une œuvre parallèle, Édouard Ropars, couverture et pages 8-18

Archiscopie, n°30, Juillet 2022, Architecture et ruralité, Terres. La fin des géorgiques, Mathieu Mercuriali, pages 19-23

M le Magazine du Monde, n°392, 23 mars 2019
Mathilde Thomas ma vie en image, Claire Dhouailly, page 110
EXPOSITIONS
The Grand Home
du 14/10/2022 au 05/11/2022 par Édouard Ropars et Antoine Collet – Galerie d’exposition de l’ENSA Paris-la-Villette
CONFÉRENCES
09/05/2023 – Auvents, Clôture et Portillons – Dans le cadre du cycle de conférence Stranger Things – ENSASE

19/11/2019 – Négociations – Présentation du projet de Montévrain – ENSA Paris-la-Villette – sur une invitation de Fredéric Martinet – Modérateur Pierre Chabard

22/11/2018 – Projets en cours et nouveau regard – ENSA Paris-la-Villette – sur une invitation de Edouard Ropars
ENSEIGNEMENT
Depuis 2018, Antoine Collet est enseignant TPCAU – V&T – École d’architecture de la ville & des territoires Paris-Est
S7/9/10 – Filière de master Architecture & Experience
S1/S2 – Licence – Enseignant territoire

Photographies: Maxime Verret (sauf mentionné) Design graphique: Jad Hussein, look specific avec Loïc Altaber Code: Ahmed Ghazi. Collet Muller Architectes, 2021. La structure générale, ainsi que les logiciels, textes, images animées ou fixes, sons, savoir-faire, dessins, graphismes, photographies et tous autres éléments composant ce site web sont de l’utilisation exclusive de la société Collet Muller Architectes. Toute représentation totale ou partielle de ce site, par quelques procédés que ce soient, sans autorisation expresse de la société Collet Muller Architectes est interdite.